Réhabilitation d’un Appartement
Lyon 1er
Client : Privé/Particulier
Surface : 25 m²
Mission : Complète
Année : 2017
Réhabilitation et réaménagement d’un appartement du XIXe siècle
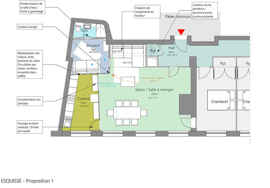
Ce projet concerne la transformation d’un appartement du XIXe siècle, caractérisé par une présence marquée des boiseries et un agencement contraignant. L’objectif était de repenser la distribution des espaces afin d’optimiser le salon, d’intégrer des rangements et de rendre l’espace nuit plus fonctionnel.
Optimisation de l’espace et réorganisation des flux
Un couloir situé en arrière-plan du salon desservait une pièce d’eau et une chambre, occupant une surface importante et réduisant l’espace de vie. Pour remédier à cette contrainte, la cloison et la verrière existantes ont été déposées et réintégrées dans le projet. L’espace du couloir a ainsi été absorbé au profit du salon, apportant plus de fluidité et de clarté à l’aménagement.
Caractéristiques du projet :Verrière/Ensemble Menuisé
Crédits Photos : Images AHVA Architectes Associés

Une nouvelle lecture de l’espace
L’aménagement retenu avance légèrement le volume de l’espace nuit sur le salon, permettant d’optimiser les proportions et d’intégrer les verrières récupérées dans la cloison séparant la cuisine. Cette disposition apporte un éclairage en second jour au nouvel espace nuit tout en préservant son intimité.
Le volume libéré en hauteur dans l’ancien couloir a été exploité pour créer une bibliothèque, accessible depuis le salon. L’accès à la cuisine a également été repensé afin d’améliorer la circulation entre les différentes pièces.


Une intervention subtile et contrastée
L’espace nuit, traité comme un volume distinct, se démarque par une teinte soutenue qui contraste avec le cachet ancien de l’appartement. Ce jeu de lignes et de couleurs apporte une touche contemporaine tout en respectant l’authenticité du lieu.
