Maison Individuelle
Millery
Client : Privé/Particulier
Surface : 115 m²
Mission : Esquisse/Permis de construire
Année : 2019
Maison Individuelle à Millery
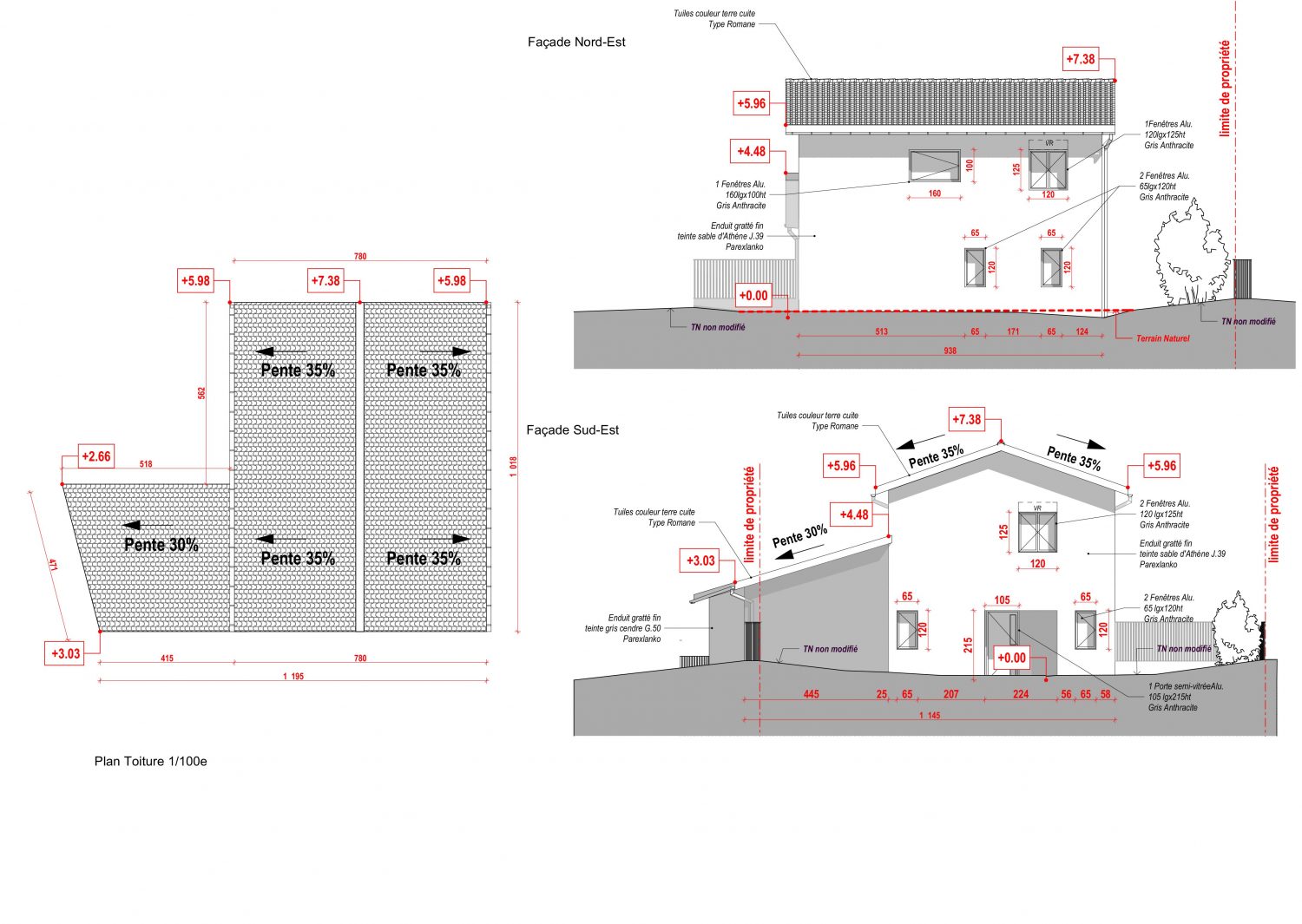
Implantation et Contraintes du Terrain
Le projet est situé sur la commune de Millery, où nos clients souhaitaient faire construire une maison à étage. Son implantation et sa forme compacte résultent des contraintes liées à la configuration de la parcelle, située à l’angle de deux rues et de surface restreinte.
Organisation des Espaces de Vie
Le rez-de-chaussée accueille les espaces de vie, organisés autour d’un bureau, d’un salon, d’une salle à manger et d’une cuisine ouverte sur le jardin. Ce niveau comprend également une salle de bain, des sanitaires et une buanderie, garantissant un confort optimal au quotidien.
Crédits Photos : Images AHVA Architectes Associés

Orientation et Traitement des Façades
Afin de préserver l’intimité des occupants, les ouvertures sont principalement orientées vers le jardin, évitant ainsi les vis-à-vis directs avec les rues adjacentes. L’entrée de la maison, conçue en retrait, structure la façade côté cour et limite les vues plongeantes depuis l’espace public.


Espaces de Nuit et Intimité
L’étage est consacré aux espaces de nuit, comprenant trois chambres, dont une suite parentale, accompagnées d’une salle de bain et de sanitaires. Cette organisation permet une séparation fonctionnelle entre les espaces de jour et les espaces privés, favorisant ainsi une meilleure qualité de vie.
